Long Beach Garden Homes Project
Addendum to EB-5 Business Plan Dated September 2015

May 2023
Sponsored by
California Investment Regional Center
This Addendum to the Comprehensive Business Plan (“referred to simply as “the Addendum”) for the Long Beach Garden Homes Project (the "Project") outlines updates to the original business plan dated September 2015, which was submitted to USCIS in reference to foreign investors (the “EB-5 Investors”) who are applying for immigrant visas through the EB-5 Investor Visa program.
The original business plan and subsequent amendments detailed the development, construction, and thereafter operation of a full-service restaurant, the sale of 36 condominium units, and lease of 5,447 square feet of retail space.
The Job Creating Entity for the Project is Los Angeles City Plaza, LP (“LACP”). LACP is also the New Commercial Enterprise. LACP may also be referred to as “the NCE/JCE” within this Addendum. The NCE/JCE is sponsored by California Investment Regional Center (“CIRC” or “the Regional Center”).
The purpose of this Addendum is to provide a summary of certain changes to the original business plan, including an update to the construction progress/development timeline, development budget, sources of funds, financial projections, industry performance, and job creation.
Section 2.0 of this Addendum includes an overview of the Project.
Section 3.0 of this Addendum presents a summary of Targeted Employment Area (“TEA”) verification and updated job creation projections.
Section 4.0 of this Addendum includes a summary of the Project’s investment structure.
Section 5.0 of this Addendum includes a summary of the current status of the Project; specifically, development activities completed and in-progress, schedule adjustments for future milestones, etc.
Section 6.0 of this Addendum includes an update to the Uses of Funds.
Section 7.0 of this Addendum includes an update to the Sources of Funds.
Section 8.0 of this Addendum presents a summary of updated financial projections.
Section 9.0 of this Addendum presents a summary of updated industry trends.
Section 10.0 of this Addendum includes a listing of exhibits.
The NCE/JCE was originally established to finance a job-creating Project, specifically the construction, development, and operation of a mixed-use building with residential condominiums, retail/restaurant space, and underground parking. The Project is owned and operated by the NCE/JCE. The NCE/JCE has subscribed twelve (12) EB-5 Investors to date at $500,000 each for a current raise of $6 million. The NCE/JCE intends to raise an additional $12 million from up to fifteen (15) foreign investors, each investing $800,000 into the NCE. Therefore, the total EB-5 investment into the Project will be $18,000,000.
THE LONG BEACH GARDEN HOMES
The Long Beach Garden Homes, a 36-unit condominium community located in Los Angeles County, California at 1598 Long Beach Boulevard, Long Beach, CA 98013, is completed, which can be seen by the following images from Google Maps:


The building is four stories with a basement parking garage, as shown in the following image of the elevation drawing (Exhibit A):

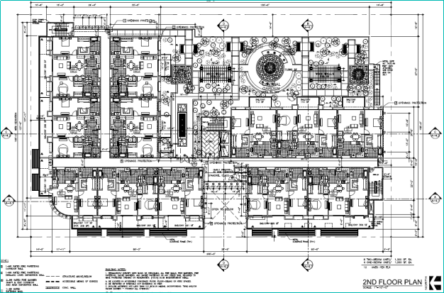
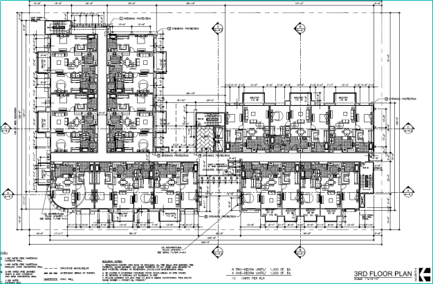
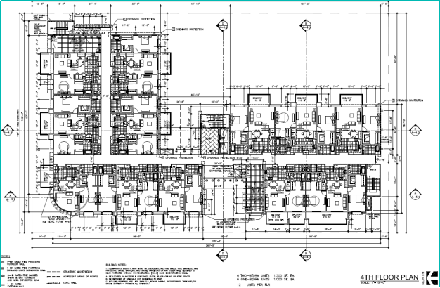
The residential units are located on the second, third, and fourth floors. The following images show the floor plans (Exhibit A):



THE LONG BEACH GARDEN HOMES RETAIL FLOOR
The first floor of the condominium building consists of 10,000 square feet (“SF”) of retail spaces for lease subdivided into 5 units, which is shown in the following floor plan (Exhibit A):
![]()
![]()
![]()
![]()





The retail portion will feature a full-service restaurant and a coffee shop, both of which will be owned and operated by the NCE/JCE.
Coffee Shop
The coffee shop will consist of a total indoor area of 1,845 SF, occupying unit 101 as indicated in the floor plan. The coffee shop will primarily serve coffee, tea, pastries, and baked goods.
Restaurant
The restaurant will consist of a total indoor area of 3,780.8 SF, occupying units 102 and 103 as indicated in the floor plan. The full-service restaurant will primarily serve Chinese food such as dim sum, steamed buns, noodle delicacies, and other Chinese specialty dishes.
Space for Lease
Units 104 and 105 will be sold for retail or restaurant use by new owner(s).
This Addendum provides an update to TEA verification as well as an update to job creation and economic impact resulting from the updates of development costs and operational revenue within this addendum.
TARGETED EMPLOYMENT AREA
The Project site is located in census tract 5753 within Los Angeles County, California, which qualifies as a high unemployment area based on an unemployment rate of 10.19%, which is greater than the required rate of 8.25% (Exhibit B).
JOB CREATION & ECONOMIC IMPACT
The economic impact analysis conducted by Baker Tilly US, LLP (“Baker Tilly”) finds that the Project will generate significant and positive economic benefits for the local, regional, and U.S. economy. The total cost of the Project is $37,570,000. The total EB-5 investment into the Project is $18,000,000 from twenty-seven (27) regional center sponsored EB-5 Investors.
Foreign investment sponsored by the Regional Center will require the creation of 270 new full-time jobs, of which 198.0 jobs are model-derived direct jobs.
According to Baker Tilly’s economic impact analysis, the Project in its entirety will create a total of 383.7 new full-time jobs.
The following summarizes the economic impact of the Project’s development:
· Gain in regional household earnings $25,573,000
· Need for business services $4,643,000
· Demand on utilities $926,000
· Demand for maintenance and construction $25,927,000
· Demand on supplier and vendor links with manufacturers $7,239,000
The following table summarizes Baker Tilly’s job creation conclusions:

Each of the 27 regional center EB5 Investors will be assigned 14.4 jobs per investor.
EB-5 investment previously injected into the Project was described in the business plan dated September 2015 by the following diagram:

There are no updates to this structure.
As of the date of this Addendum, the NCE/JCE has subscribed 12 EB-5 Investors at $500,000 each for a total raise of $6 million. The NCE/JCE intends to raise an additional $12 million from up to 15 foreign investors, each investing $800,000 into the NCE. Therefore, total EB-5 investment into the Project will be $18,000,000 from 27 EB-5 Investors.
This Addendum provides details of development activities completed and in-progress at the time of this business plan addendum as well as anticipated changes to the development schedule required in order to complete the Project’s development.
Construction of the Project began in January 2017 with Site Work. Progress was significantly delayed by the Covid-19 pandemic, but as of April 2022, building construction is complete. Only interior construction for the restaurant and coffee shop remain, which is scheduled to occur from June 2024 to October 2024. The following charts illustrate the entire Project schedule from initial planning in 2015 to Project completion (Exhibit C):



The following have been completed as of April 2023 (Exhibits A and C):
· Site Plan Approval received June 2015
· Foundation Permit received December 2016
· Site Work Commenced January 2017
· Site Work Completed October 2017
· Building Permit received October 2017
· Building Construction Commenced November 2017
· Framing commenced January 2018
· No Construction during 2020 due to COVID-19 restrictions
· Building Construction re-commenced 2021
o Progress slowed due to city inspection scheduling
· Building Construction and Inspections Completed April 2022
The following are planned milestones required to complete the Project in its entirety (Exhibit C):
· Sales of remaining condominium units.
· Sales of remaining retail spaces.
· Planning and submission of floor plans for restaurant and coffee shop (in progress).
· Receipt of building permits for interior improvements (anticipated June 2024).
· Commence construction of restaurant and coffee shop interiors (anticipated June 2024).
· Completion of improvements is anticipated in October 2024.
· Operation commencement of restaurant and coffee shop anticipated November 2024.
The following images show the current status of development, which is the completion of building construction:



The following table presents Project costs within the business plan dated September 2015:

The following table summarizes updated Project costs resulting from the updated building construction costs and addition of the restaurant and coffee shop:
As can be seen, actual costs for the Project’s development is significantly higher than the original estimated costs. This increase in costs occurred as a result of the prolonged construction timeline, which was due to circumstances beyond the control of the NCE/JCE. These circumstances include prolonged inspection scheduling of city and county officials, COVID19 pandemic work restrictions, supply chain disruptions, and drastic increases to inflation.
Updated costs are based on the following:
Acquisition Costs: Land Cost has not changed from the business plan addendum dated September 2015.
Construction Costs: Construction refers to all costs incurred to construct the Long Beach Garden Homes condominium building, including underground parking, main structure construction, ground level parking, roof garden, utilities, fire, landscaping, public works, etc. This is based on a quote provided by USA Realty Construction Group, Inc. (Exhibit D).
Furniture, Fixtures, and Equipment (“FF&E”): FF&E refers to all costs incurred from the purchase of furniture, fixtures, and equipment to be installed within the condominium building. This includes the FF&E costs associated with construction, coffee shop outfitting, and restaurant outfitting. This is based on a quote provided by USA Realty Construction Group, Inc. (Exhibit D).
Architectural and Engineering (“A&E”): A&E refers to all costs incurred from the architectural and engineering services received for the development of the Long Beach Garden Homes condominium building. This is based on a quote provided by USA Realty Construction Group, Inc. (Exhibit D).
Soft Costs consists of various costs associated with the Project’s development of the Long Beach Garden Homes condominiums as well as a contingency cash reserve to cover cost changes that are likely to occur during development of the restaurant and coffee shop.
Pre-Opening costs consist of Working Capital required to pay operational expenses of the restaurant and coffee shop until sales revenue exceeds expenses.
This addendum provides an update to the Project’s source of funds, which is a direct result of the updated scope of the Project.
Funding for the Project will be secured through a combination of EB-5 funding and other sources. The sources of funding for the Project are summarized and illustrated as follows:
Source of Funds by Amount | Source of Funds by % | |
EB-5 Funds (Raise #1) | $6,000,000 |
|
EB-5 Funds (Raise #2) | 12,000,000 | |
Senior Debt | 12,500,000 | |
Private Equity | 7,070,000 | |
Total Capitalization | $37,570,000 | |
EB-5 Funds (Raise #1) in the amount of $6.0 million has been provided by 12 EB5 investors that are sponsored by the Regional Center, each having invested $500,000.
EB-5 Funds (Raise #2) in the amount of $12 million will be provided by 15 EB5 investors that will be sponsored by the Regional Center, with each investing $800,000.
Senior Debt in the amount of $12,500,000 has been secured by the JCE, as shown in the JCE’s Balance Sheet as of April 30, 2023 (Exhibit E).
Private Equity in the amount of $7,070,000 was provided by the JCE as necessary to complete Project construction, which is reflected in the JCE’s Balance Sheet as of April 30, 2023 (Exhibit E).
CONDOMINIUM AND RETAIL SPACE SALES
The following table summarizes the update to the JCE’s projected pro forma for the sale of condominiums and retail spaces (Exhibit G):

The JCE is basing its condominium and retail space sales revenue on the following assumptions:

These sales pricing assumptions are reasonable in comparison to condominiums for sale on Zillow.com (Exhibits F and G) and a comparable retail space for sale on CityFeet.com (Exhibit H).
CHINESE RESTAURANT
The following table summarizes the update to the JCE’s projected operating pro forma for the new Chinese Restaurant:

This proforma is reasonable in comparison with performance reported in Bizminer’s December 2022 report 722511 Industry Financial Profile for Full-Service Restaurants: Los Angeles Metro Area (Exhibit I).
COFFEE SHOP
The following table summarizes the update to the JCE’s projected operating pro forma for the Coffee Shop:

This proforma is reasonable in comparison with performance reported in Bizminer’s December 2022 report 722515 Industry Financial Profile for Snack & Nonalcoholic Beverage Bars: Los Angeles Metro Area (Exhibit J).
Market trends have changed from the original business plan and previous addendums. The following sub-sections present updated summaries of trends in the two industries in which the JCE is operating, specifically for a full-service Chinese Restaurant and a Coffee & Tea Shop.
INDUSTRY ANALYSIS: SINGLE LOCATION FULL-SERVICE RESTAURANTS
This market analysis update focuses on the Full-Service Restaurants (NAICS 722511) sub-sector of the Restaurants and Other Eating Places (NAICS 7225) parent industry. The IBISWorld January 2023 Industry Report 72211B Single Location Full-Service Restaurants in the U.S. reports the following key trends:
· Many consumers seek alternatives to industry restaurants by searching for deals online.
· Restaurants have expanded the number of healthy options on their menus.
· There is a high level of turnover among industry operators.
· Intense competition among industry operators and external competitors is forecast to continue.
· Fine dining is expected to do well due to the stable share of high-income households.
· Restaurants will likely engage with customers using websites and social media.
· The industry has been highly fragmented and exceedingly competitive.
The growing domestic economy led to consistent but modest increases in consumer spending on full-service restaurants. The fine-dining segment performed particularly well over the past five years due to solid growth in the income levels of affluent consumers. Nevertheless, industry operators were forced to curtail dine-in operations when the coronavirus struck, thus reducing demand for fine-dining restaurants as services at these establishments involve a high degree of in-person experience. Simultaneously, restaurants at the lower end of the market struggled as consumers traded down to the innovative products served by a growing number of new high-quality fast-casual chains.
The majority of operators are small, family-run businesses, which causes the industry to be highly fragmented and exceedingly competitive. Single-location restaurants experience heavy competition from other food service providers and directly compete with chain restaurants, fast food restaurants, hotels and other coffee and snack stores. In 2020, the mandatory closure brought on by the COVID-19 outbreak hurt industry revenue as sit-down services were halted. As dine-in services have resumed, over the past five years, industry revenue has expanded at a CAGR of 0.4% to $208.9 billion, including 1.1% growth in 2023. Nonetheless, profit has faltered as demand still falls short of the pre-pandemic level.
Despite the inflationary pressure, the industry will continue growing as consumer spending strengthens. Rising health consciousness and ethical consumerism will present industry operators with ongoing opportunities to reach niche markets with premium products to increase revenue. The industry will also benefit from growth in the number of high-income earners, in addition to a greater number of people living in urban areas where restaurants are highly concentrated. Industry revenue will grow at a CAGR of 0.2% to $211.2 billion over the next five years.
INDUSTRY ANALYSIS: COFFEE AND SNACK SHOPS
This market analysis update focuses on the Snack and Nonalcoholic Beverage Bars (NAICS 722515) sub-sector of the Restaurants and Other Eating Places (NAICS 7225) parent industry. The IBISWorld January 2023 Industry Report 72221B Coffee & Snack Shops in the U.S. reports the following key trends:
· Low rainfall in Brazil and global supply chain disruptions resulted in surging coffee prices.
· Fluctuations in consumer confidence, consumer spending and the unemployment rate directly affect the industry.
· There has been a growing focus on the quality of beans.
· Most coffee shops will return with new strategies and menu options.
· Larger chains that endured limited growth in domestic profit will double down on international expansion.
· Many coffee shops need to shift part of their focus to aesthetics and function.
· Increases in consumer spending led to increased spending at industry locations.
The Coffee and Snack Shops industry has experienced increasing volatility because of domestic and global economic changes. Before the worldwide spread and economic impact of COVID-19, the industry was bolstered by growth in the domestic economy. Increases in consumer spending led to increased spending at industry locations. For most of the period, demand for coffee and snack shops has grown faster than most segments of the food service sector as consumers have increasingly sought out convenience at an affordable price. Nonetheless, the coronavirus heavily affected the industry as it caused a sharp decline in demand for coffee and snacks and forced some establishments to curtail their sit-down operations. Industry revenue increased at a CAGR of 1.4% to $54.5 billion over the past five years, despite a 0.7% decline in 2023 alone.
In 2020, to prevent the virus from spreading, state and local governments shut down many segments of their economies by instating stay-at-home orders and all nonessential businesses. Although some coffee shops were considered essential and permitted to stay open, the sharp reduction in demand forced many establishments to close.
The Coffee and Snack Shops industry will recover from the turmoil of 2020. This recovery happens at the end of the pandemic, enabling a return to stability. Nonetheless, the industry landscape may remain changed as it will take time to reopen businesses that shut down permanently at the end of the previous period. Overall, industry revenue will continue growing at a CAGR of 0.9% to $57.1 billion through 2028.
Exhibit A – Approved Site Plans
Exhibit B – TEA Verification Letter
Exhibit C – Project Schedule
Exhibit D – Project Budget Quote
Exhibit E – Balance Sheet
Exhibit F – Zillow 1-BR Condos For Sale
Exhibit G – Zillow 2-BR Condos For Sale
Exhibit H – CityFeet Retail Space For Sale
Exhibit I – Bizminer 722511 IFP LA Metro
Exhibit J – Bizminer 722515 IFP LA Metro